VIDEM (Dobrepolje)
SODOBNA ENOTA DVOJČKA | 135 m² | 446 m² ZEMLJIŠČA | NOVOGRADNJA - zgr.l. 2026
Sodobno družinsko bivanje v mirnem okolju – dom,
ki združuje naravo in udobje
Na izjemni lokaciji v Vidmu pri Dobrepolju je naprodaj sodobna enota dvojčka v zaključni fazi gradnje, zasnovana za kakovostno, varno in udobno družinsko življenje.
Gre za arhitekturno dovršeno leseno montažno hišo, ki združuje prednosti naravnih materialov, sodobnih tehnoloških rešitev in energetsko učinkovite gradnje po najnovejših evropskih standardih.Nepremičnina se nahaja v urejenem naselju družinskih hiš, kjer boste uživali v miru, naravi in hkrati bližini vse ključne infrastrukture.
VELIKOST: 135 m2
ZEMLJIŠČE: 446 m2
Zakaj vas bo ta nepremičnina prepričala?
- svetel in prostoren dnevni prostormožnost
- izjemno funkcionalen tloris; do 5 spalnic, dve kopalnici
- prostoren vrt
- 2 parkirni mesti
- mirna lokacija
- možnost prilagoditve za dve ločeni stanovanjski enoti (ločeno zgornje in spodnje nadstropje)
- novogradnja; dokončana bo "na ključ"
Odlična lokacija - v bližini:
- vrtec in šola
- trgovina (Mercator in Spar, Kmetijska zadruga)
- Zdravstveni dom in Lekarna
- narava in rekreacijske poti...v načrtu tudi športni park
- avtobusna postaja (400 m), železniška postaja (2 km)
Predviden zaključek gradnje: julij 2026
CENA: 439.000,00 € (9,5 % DDV je vključen v ceno)
Več informacij: 041 313 072
info@naravni-pretok.si
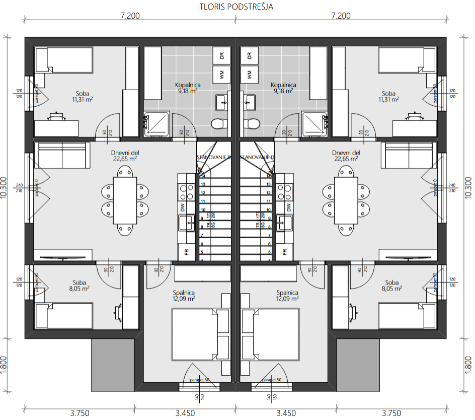
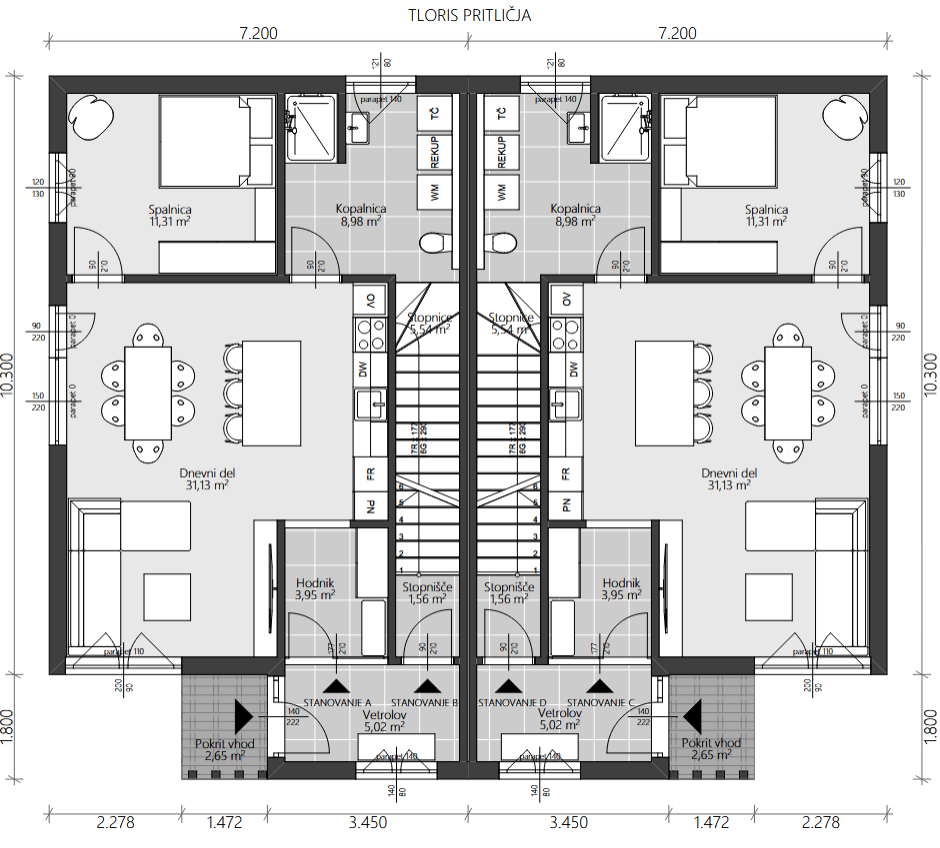
RAZPORED PROSTOROV:
Pritličje:
vetrolov
hodnik + stopnišče
pokrit vhod
prostoren dnevni prostor s panoramskimi vrati - izhod na teraso + kuhinja
kopalnica
spalnica
prostor pod stopnicami
Nadstropje:
spalnica
dve sobi
kopalnica
dnevni prostor s kuhinjo (možnost spremembe v dodatno sobo, kabinet, garderobno sobo…)

